Piazzale Enrico Mattei 1 - Roma (RM)
Descrizione edificio:
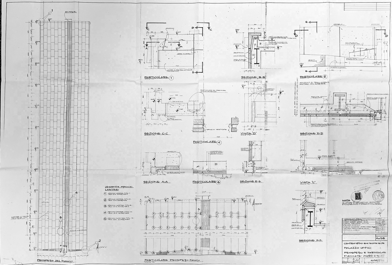
Il complesso si compone di un corpo a sviluppo prettamente verticale, che ospita gli uffici, e un corpo basso destinato alla mensa aziendale. La pianta è rettangolare, con una superficie di 1.200 mq e l’altezza complessiva è di 23 livelli (21 fuori terra e due interrati) pari a 85 metri, per una cubatura totale di circa 100.000 mc. L’edifico è stato, dalla sua inaugurazione e fino a tempi recenti, il più alto della capitale dopo la Basilica di San Pietro. La facciata è stata riqualificata nel 2009.
Descrizione sistema costruttivo:
Struttura in acciaio con irrigidimento in cemento armato. Le testate dell’edificio sono pareti di calcestruzzo rivestite in travertino che svolgono funzione di controventatura per i telai metallici. La facciata è in curtain wall, con strutture in alluminio e pannelli di cristallo.
| Codice scheda | RM_05 |
|---|---|
| Posizione geografica | 41°49'36.11"N, 12°28'17.31"E |
| Anno progettazione | 1959 – 1961 |
| Anno realizzazione | 1960 – 1962 |
| Brevetto | No |
| Progettisti | Marco Bacigalupo, Ugo Ratti, Leo Finzi, Edoardo Nova |
| Committente | SNAM PROGETTI |
| Imprese | Officine Bossi S.p.A. (strutture), Mario Genghini (opere in calcestruzzo), F.lli Greppi di Donato (facciata continua) |
| Tipologia edilizia | Edilizia per uffici |
| Sistema costruttivo | Prefabbricazione leggera |








